时间:2022-08-05 浏览:497

迷人最是现代轻奢。择一处世外桃源,拥有“入则宁静,出则繁华”的生活,是许多都市人向往的状态。现代,轻奢,自然,犹如聆听了世间繁华,不为夸耀,却舞成一段旖旎时光的风景。

DRAWING ROOM
客厅
灰色沙发,纯白色的电视背景墙,黑色烤漆电视柜的电视柜,经典的黑白灰色系搭配简约而不简单、干净而又清爽,以低调奢华的态度传达着独一无二的价值理念。

DINING ROOM
餐厅
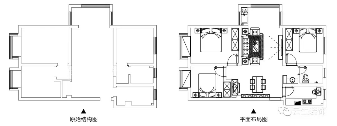
餐厅侧面的墙上设计了一面储物柜,冰箱嵌在储物柜里面,节省了空间又满足了客户储物需求;下垂聚光灯使得餐厅非常温馨。餐厅空间与客厅之间,并无隔断,而是以开放式的布局,打造通透之美。

MAIN BEDROOM
主卧
主卧明亮且富有光泽,轻奢风格恰到好处地运用到室内,以中性色系作为色系的主轴,简单素雅简单的设计,却显得尤为高级。

MINOR BEDROOM
次卧
次卧整洁且简约,床头柜上只以灯饰来渲染空间的素雅之美,木质地面为空间增加气质感,床体一侧是到顶的收纳柜,另一侧则是一面大窗户,让空间采光十足的同时也更加的通透。

KIDS ROOM
儿童房
儿童房以低饱和度的色系为空间主色调,舒适且自然,靠窗户的一侧是学习区,采光很好,柔和、均匀充足的照明能使房间更温暖也能让孩子有安全感。

